Postavia Polyfunkčný objekt Avion. Mestská časť Bratislava-Ružinov vydala koncom januára 2026 územné rozhodnutie o umiestnení projektu. Pôvodná prevádzková budova ubytovne sa dočká prístavby, nadstavby a dostavby, čím vznikne moderný komplex kombinujúci bývanie, apartmánový hotel a administratívu. Projekt prináša výrazné architektonické prvky v podobe oceľových konštrukcií s popínavou zeleňou a komunitnú strechu s wellnessom. (RK)

Urbanistické riešenie a funkčné využitie
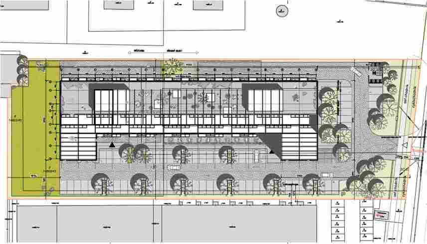
Nový objekt vyrastie na Ivánskej ceste v katastrálnom území Trnávka. Architektonický návrh od DMArchitekti počíta s pôdorysom v tvare písmena U, ktorý vytvorí poloprivátny dvor pre obyvateľov a návštevníkov.
- Hlavná funkcia: Bývanie (55 bytov) a prechodné ubytovanie (17 jednotiek apartmánového hotela).
- Doplnková funkcia: Kancelárske a obchodné priestory na nižších podlažiach.
- Zelené technológie: Fasáda bude vybavená systémom pre zber dažďovej vody určenej na závlahu vertikálnej zelene.
Technické parametre stavby
Objekt je navrhnutý ako šesťpodlažná budova s dvomi podzemnými podlažiami, ktoré slúžia primárne na parkovanie.
| Ukazovateľ | Hodnota |
| Počet bytov | 55 |
| Počet ubytovacích jednotiek (hotel) | 17 |
| Celková hrubá podlažná plocha | 10 649,70 m² |
| Počet parkovacích miest v suteréne | 144 |
| Počet parkovacích miest na teréne | 105 |
| Maximálna výška (atika) | +23,145 m |
Komunitný život na streche
Jedným z najzaujímavejších prvkov projektu je riešenie strechy, ktorá má slúžiť ako spoločný verejný priestor.
- Zelená strecha: Extenzívna zeleň s pochôdznymi plochami.
- Vybavenosť: Projekt počíta s umiestnením komunitnej kaviarne a malého wellness centra priamo na streche objektu.
- Zlepšenie klímy: Kombinácia zelenej strechy a fasádnej zelene má výrazne zlepšiť mikroklímu v bezprostrednom okolí stavby.
Ochranné pásma a letisko
Vzhľadom na blízkosť Letiska M. R. Štefánika musel projekt rešpektovať prísne výškové obmedzenia.
„Najvyšší bod polyfunkčného objektu, vrátane všetkých zariadení na streche a stavebných mechanizmov, nesmie prekročiť nadmorskú výšku 172,00 m n. m. Bpv, čo predstavuje približne 38 metrov od úrovne terénu,“ uvádza dokument.
Tieto limity sú stanovené kvôli ochrannému pásmu vodorovnej roviny letiska a radarovým zariadeniam pre riadenie letovej prevádzky.
Doprava a parkovanie
Projekt prinesie reorganizáciu dopravy v areáli. Celkovo bude k dispozícii 249 parkovacích miest, pričom 144 z nich bude ukrytých v podzemnej garáži pod prístavbou.
Vjazd do areálu z Ivánskej cesty zostane zachovaný, no prejde úpravami, ktoré zabezpečia bezpečnejšie vchádzanie a vychádzanie vozidiel. Súčasťou projektu je aj vybudovanie cyklochodníka a stojísk pre bicykle s elektro-nabíjačkami.
Ochrana životného prostredia a náhradná výsadba
V rámci prípravy územia bol povolený výrub ôsmich kusov drevín. Stavebník je však povinný realizovať náhradnú výsadbu a zaplatiť finančnú náhradu za spoločenskú hodnotu odstránenej zelene.
Dokumentácia tiež ukladá povinnosť vykonať pred začatím prác odbornú obhliadku zameranú na možný výskyt chránených živočíchov, ako sú netopiere alebo vtáctvo hniezdiace v štrbinách budov.
(Ružinov, BA24)


Pridaj komentár