Na Žabom majeri sa bude stavať. Rača oficiálne povolila výstavbu nového administratívneho objektu Romana Zvozila, ktorý chce vybudovať modernú nebytovú budovu určenú pre kancelárie a skladovanie. Rozhodnutie nadobudlo platnosť po dlhšom procese, v ktorom úrad zohľadnil aj technické pripomienky susedov k odvádzaniu dažďových vôd. (RC)

Základné údaje o projekte
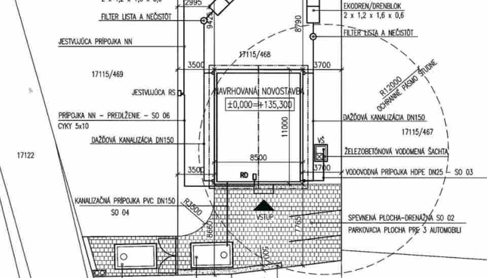
Novostavba je situovaná na pozemkoch registra „C“-KN v katastrálnom území Rača. Ide o jednopodlažný objekt bez podpivničenia, ktorý sa vyznačuje ľahkou konštrukciou a efektívnym využitím plochy.
- Stavebník: Roman Zvozil
- Lokalita: Žabí majer, Bratislava
- Účel stavby: Administratíva a skladovanie
- Zastavaná plocha: 93,50 m²
- Úžitková plocha: 83,35 m²
Členenie stavby na objekty
Celý projekt pozostáva zo šiestich hlavných stavebných objektov, ktoré zabezpečujú plnú funkčnosť budovy a jej napojenie na infraštruktúru:
- Novostavba administratívneho objektu (hlavná budova)
- Hrubé terénne úpravy a spevnené plochy
- Prípojka vody a vlastná narážaná studňa
- Prípojka kanalizácie a žumpy
- Požiarna nádrž
- Prípojka nízkeho napätia (NN)
(Maps Google)
Technické riešenie a dispozícia
Budova s rozmermi 11 m x 8,5 m bude postavená z Farmacell panelov so zateplením a zastrešená miernou sedlovou strechou s plechovou krytinou.
Vnútorné priestory sú navrhnuté tak, aby poskytovali komfortné zázemie pre zamestnancov aj návštevy.
| Priestor | Popis riešenia |
| Dispozícia | Zádverie, kancelária, zasadacia miestnosť, sklad, WC, sociálne zariadenie a kuchynka. |
| Vykurovanie | Priamo výhrevné konvektory, doplnené o krb na tuhé palivo v zasadacej miestnosti. |
| Parkovanie | 3 parkovacie miesta na spevnených plochách z drenážnej dlažby. |
| Voda a odpad | Vlastná studňa s tepelným čerpadlom; splašky odvedené do nepriepustnej žumpy. |
Ochrana životného prostredia a námietky susedov
Stavebný úrad v rámci konania vyhovel námietkam účastníčky konania, pani Janky Hrúzikovej. Pripomienky sa týkali najmä rizika vytápania susednej záhrady v dôsledku nepriepustnosti miestnej zeminy.
Na základe pripomienok boli určené tieto opatrenia:
- Vsakovacie bloky: Musia byť umiestnené v dostatočnej vzdialenosti od susedných pozemkov, aby dažďová voda nepretekala na cudziu plochu.
- Sm odpad: Prístrešok na smetné nádoby nebude umiestnený v bezprostrednej blízkosti susediaceho pozemku.
- Ochrana zelene: Práce v blízkosti stromov sa musia vykonávať ručne, pričom koreňový systém a kmene musia byť chránené debnením.
Podmienky a lehota výstavby
Stavebné povolenie má platnosť dva roky, počas ktorých sa musí začať s prácami. Samotná lehota na uskutočnenie stavby bola stanovená na 24 mesiacov odo dňa jej začatia. Stavebník je povinný pred začatím prác oznámiť termín úradu, viesť stavebný denník a na viditeľnom mieste označiť stavenisko štítkom „Stavba povolená“.
Stavbu bude realizovať spoločnosť BAU holding – rodinné domy, s.r.o. so sídlom v Nitre. Po dokončení bude objekt podliehať kolaudačnému konaniu, kedy bude okrem iného potrebný aj rozbor pitnej vody zo studne a geometrický plán.
(Rača, BA24)


Pridaj komentár